Ancient Zvenyhorod

Historical and cultural park "Ancient Zvenyhorod" ("Drevniy Zvenyhorod") in the village of Zvenyhorod, Pustomyty district, Lviv region.



The main purpose of creating this park is preservation of archaeological excavations sites for their further research and conservation.



Zamchyshche zone has a complex structure; terrain is heterogeneous, distorted by anthropogenic activities so it is to be leveled.



Terrain creation will be carried out with minimum intervention into the soil masses, namely: significant deepenings will be filled up with technical soil layer and leveled with fertile layer of soil for conducting the works on arrangement of lawn covering.
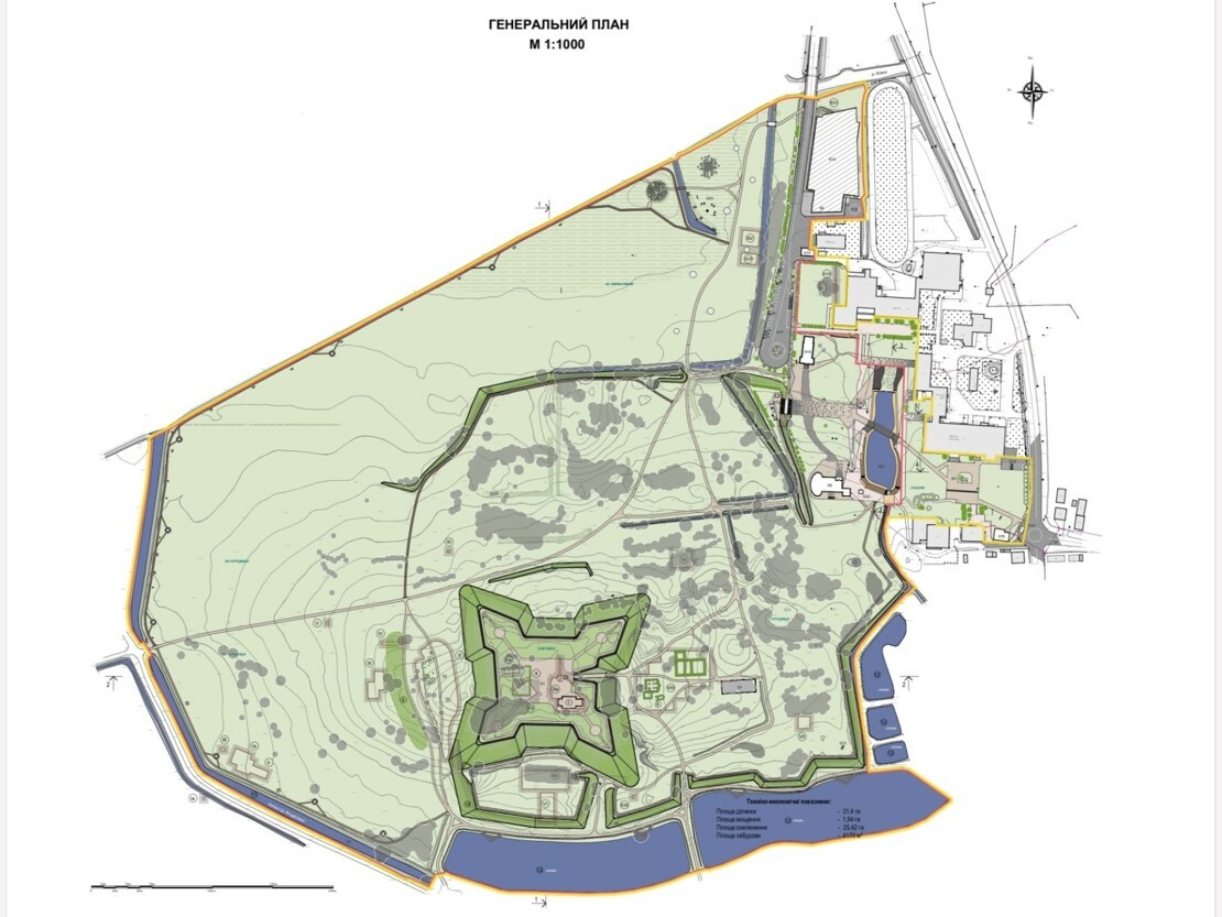
About the project
Beyond the circle of defense mounds, the territory perimeter ends with a water channel of the Kotsurivka River.



Due to the fact that the river channel at this stage is waterlogged and overgrown with bog plants, it has weak flowing capacity. It is planned to clear the channel with lowering of the streambed bottom.
In the east part of the park, there is a pond with a bridge. It is planned to clear it and arrange a drainage system for solving the problem of partial underflooding of area.



The most valuable samples of trees will be preserved and included into the structure of the new greenery of the park if they correspond to the general scenery and species structure of the park's landscape.
The park is divided into zones so we managed to fill up each of these zones differently.



Due to the fact that in the central part of the park no archaeological sites are preserved, this particular zone has been filled up to the utmost.
The entrance part of the park will start from a picturesque alley made of pink common hawthorn.



From beneath, it is supported by a cornel plantation in green and white tones.



On the left near the entrance, our archaeological zone is located; it is marked with a block planting of lowgrowing ornamental grass (sesleria).



Historically, in this part there was a wooden street; it will be also marked with decorative concrete coating resembling wood in form and structure.